Fully Finished Maisonette Ground floor in Zabbar ref 13407

Zabbar

Maisonette Ground floor

€ 330,000


Fully Finished

Ref 13407

Description

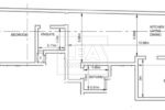
New on the market is this squarish layout fully finished Ground Floor Maisonette,  located in a residential area close to all amenities. The Maisonette features a spacious open-plan kitchen, living, and dining area, two bedrooms, with the main bedroom having an en-suite bathroom, back yard, as well as a main bathroom. This property will be sold fully finished, including bathrooms and internal doors and freehold. This property is a must-see!

To be finished by October 2026

1 car garage also available within the same block at the price of just 45k

Property features

Internal m2 : 90

External m2 : 16

2 bedrooms

2 bathrooms

Ground Floor

Back Yard

Basement 1 Car Garage ( Optional)

Contact Agent

Alister Camilleri

99002213

alister@leaproperties.com

    captcha

    Share
    PDF
    Send to a Friend
    Send to a Friend







      captcha