Finished Apartment in Luqa ref 11446

Luqa

Apartment

€ 345,000


Finished

Ref 11446

Description

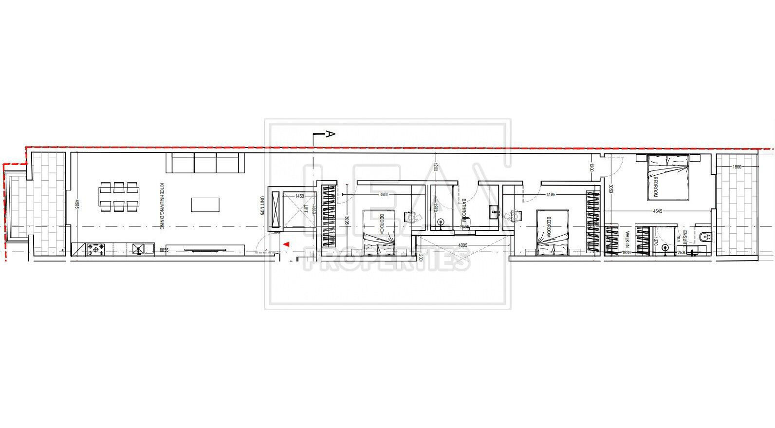
NEW ON THE MARKET comes this 3 bedroom 3rd floor apartment in Luqa. This property is being sold freehold and on plan to be complete by June of 2027. Property layout consists of a large open plan leading onto a nice front terrace, 3 double bedrooms (main with ensuit and walk in wardrobe) , 2 bathrooms and a back terrace. Property is being sold finished excluding bathrooms and internal doors

Property features

Internal m2 : 110

External m2 : 15

3 bedrooms

2 bathrooms

3rd Floor

1 Front Terrace

1 Back Terrace

Basement 1 Car or 2 Car Garage ( Optional)

Contact Agent

Lucienne Cassar

9980 5238

lucienne@leaproperties.com

    captcha

    Share
    PDF
    Send to a Friend
    Send to a Friend







      captcha