Unconverted Town House in Zabbar ref 11445

Zabbar

Town House

€ 270,000


Unconverted

Sole Agent

Ref 11445

Please note that some or all of the images are renderings and artist's impressions are for illustrative purpose only.

Description

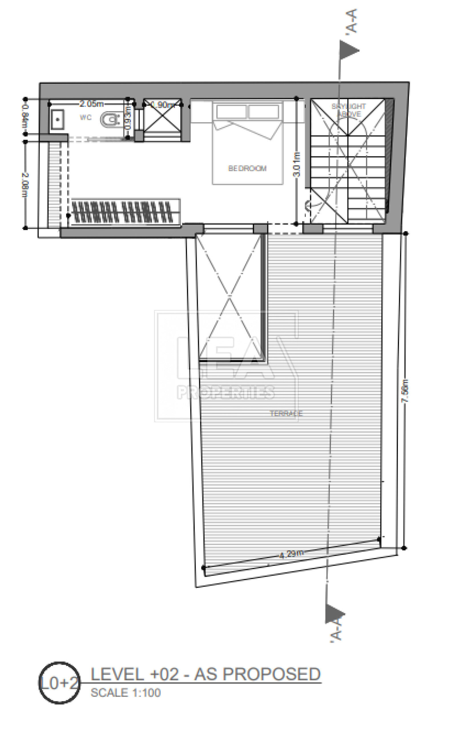
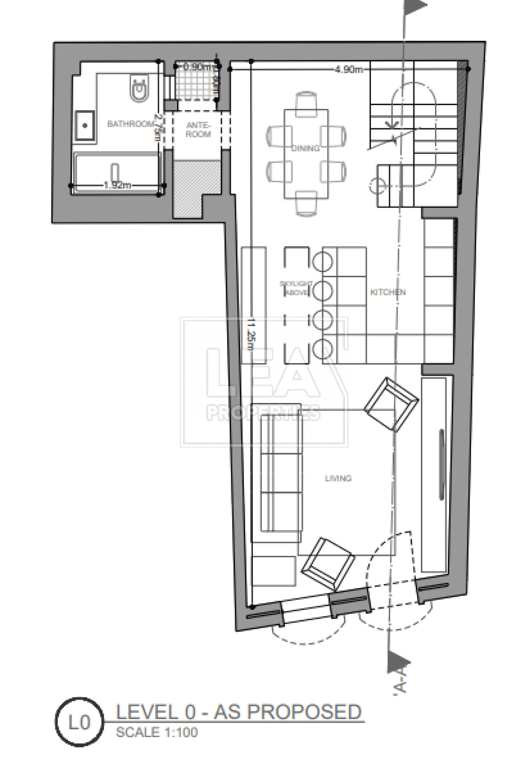
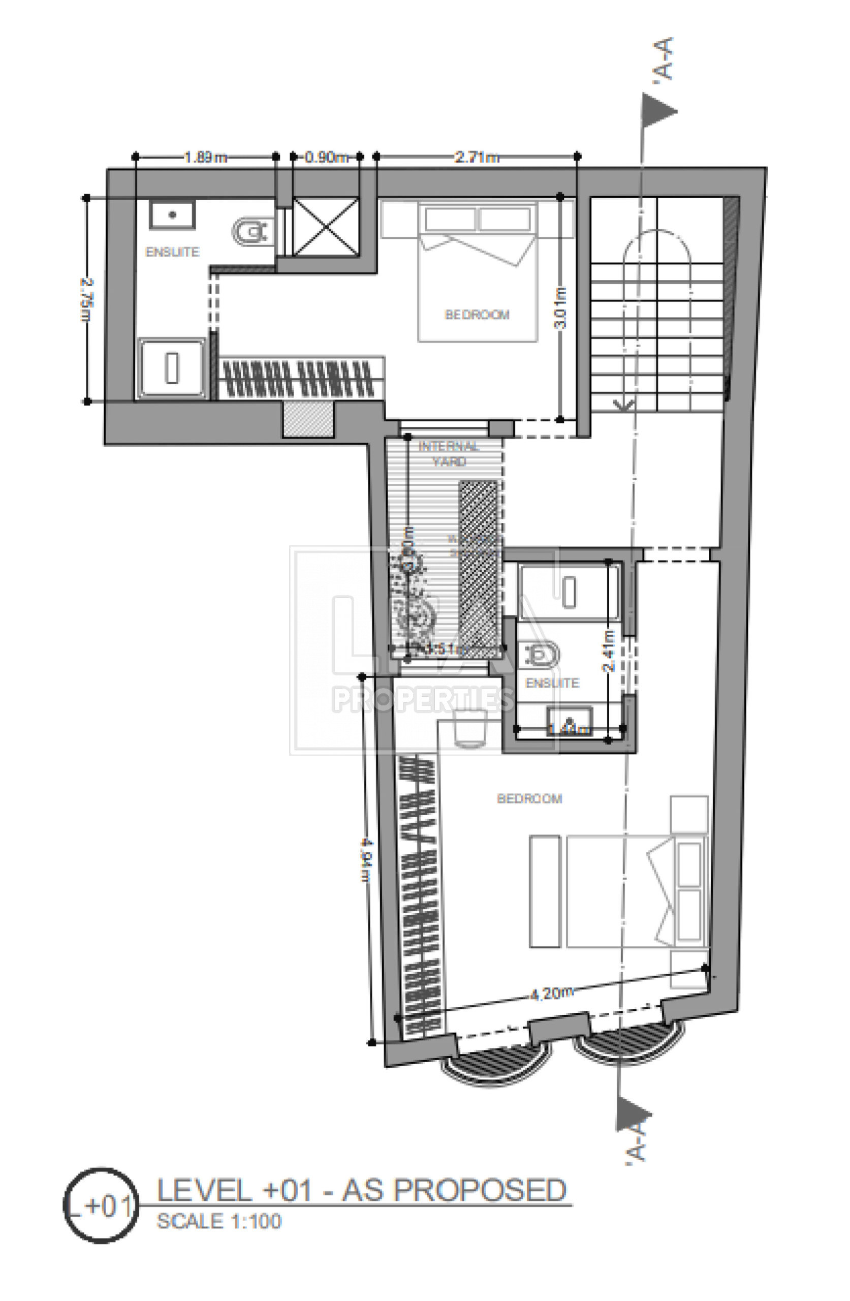
New On The Market comes this plot in a UCA area on the outskirts of Zabbar with Permits in hand approved to newly construct a 3 bedroom 4 bathroom townhouse. Ground floor consists of an open plan approx 11.25m x 4.9m and a main bathroom, First floor 2 double bedrooms with there own ensuites and an internal yard and on the roof level another bedroom with an ensuite and a large roof terrace. Plans also include multiple skylights for maximum light!

All demolition and disposal of waste material is done site is being sold freehold and ready to be constructed with permits in hand

Property features

Internal m2 : 150

External m2 : 45

3 bedrooms

4 bathrooms

Internal Yard

2 Front Balconies

Full Roof

Air Space

Contact Agent

Alister Camilleri

99002213

alister@leaproperties.com

    captcha

    Share
    PDF
    Send to a Friend
    Send to a Friend







      captcha