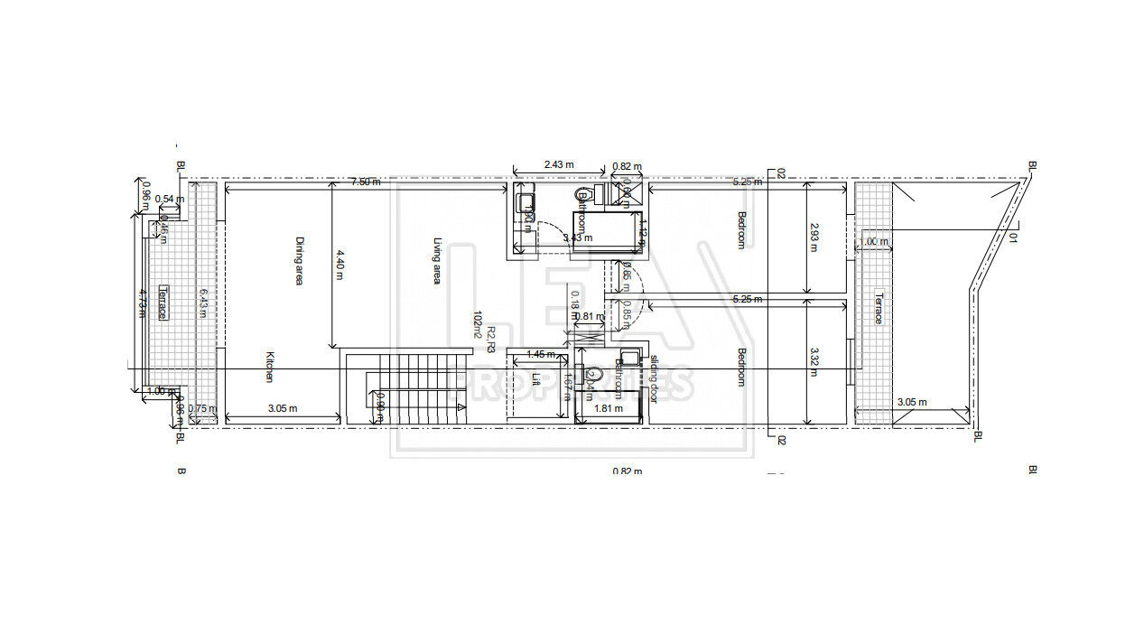
Property for Sale in Ghaxaq

Home » All Locations » Property for Sale in Ghaxaq

Send us a message

    • captcha