Finished Apartment in Paola ref 13307

Paola

Apartment

€ 334,000


Finished

Ref 13307

Description

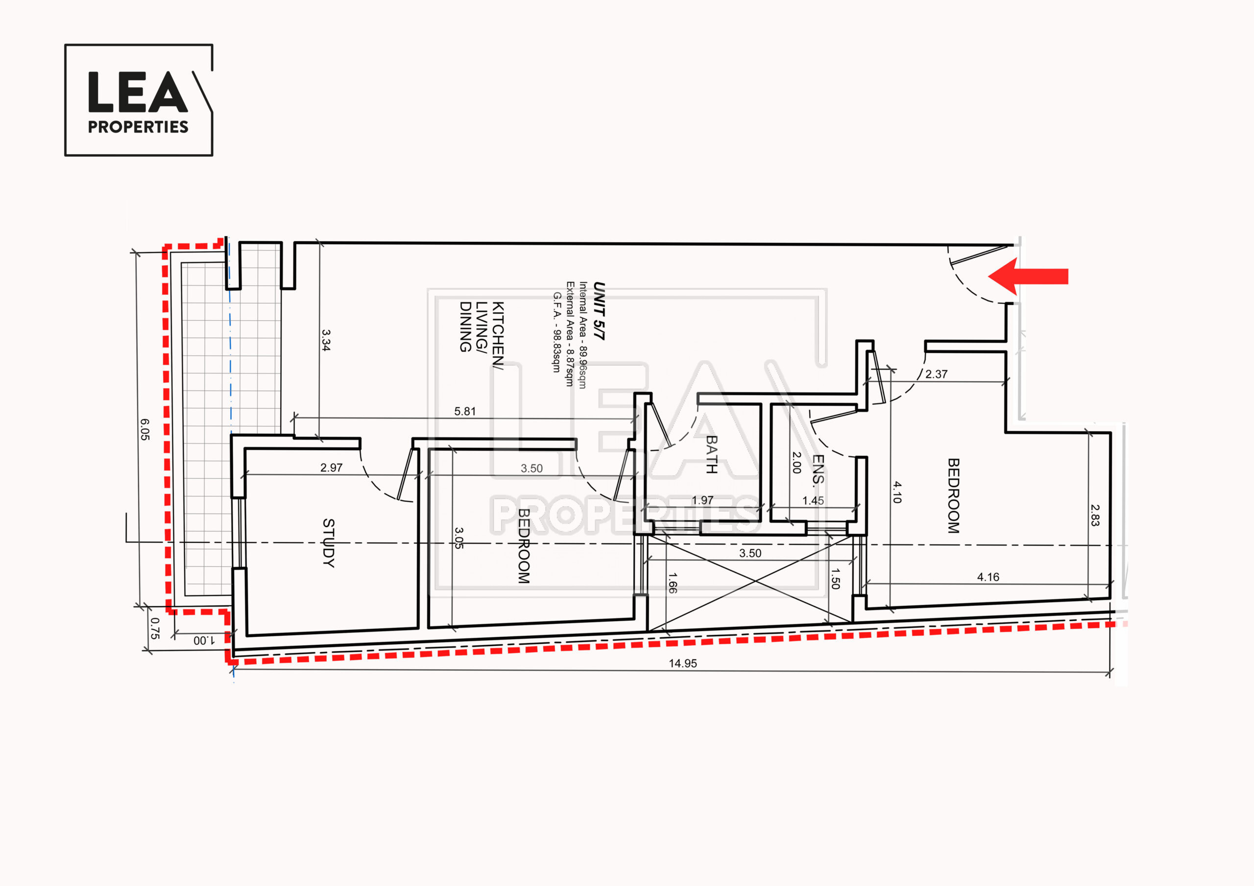
Paola – Apartment 7

Forming part of a modern, low-density block of apartments located in a quiet residential area of Paola, this apartment offers a smart and efficient layout designed for comfortable everyday living.

The property enjoys a practical squarish design, ensuring excellent use of space throughout. It comprises two bedrooms, a separate study ideal for use as a third bedroom, home office, or guest room, one en-suite bathroom, a main bathroom, and space allocated for a box room.

A well-sized open-plan living, kitchen, and dining area opens onto a front terrace, providing a pleasant outdoor space for everyday use.

The block has been constructed to modern standards and benefits from:

  • Insulated building structure and apertures, improving energy efficiency
  • EPC certification, ensuring compliance with modern building standards
  • Interconnected lift and underlying garages
  • A location just minutes away from the Central Link, offering excellent connectivity

With approximately 90 sqm of internal space and 9 sqm of external space, this apartment is ideal for first-time buyers, young families, or rental investors looking for a modern property within a well-connected development.

The apartment is being sold finished, excluding bathrooms and internal doors.

Optional garages are available, with starting prices from €52,000.

Property features

Internal m2 : 90

External m2 : 9

2 bedrooms

2 bathrooms

3rd Floor

1 Front Terrace

Basement 1 Car Garage ( Optional)

Contact Agent

Maria Mallia

99101320

maria@leaproperties.com

    captcha

    Share
    PDF
    Send to a Friend
    Send to a Friend







      captcha