Finished Maisonette Ground floor in Paola ref 13303

Paola

Maisonette Ground floor

€ 391,000


Finished

Ref 13303

Description

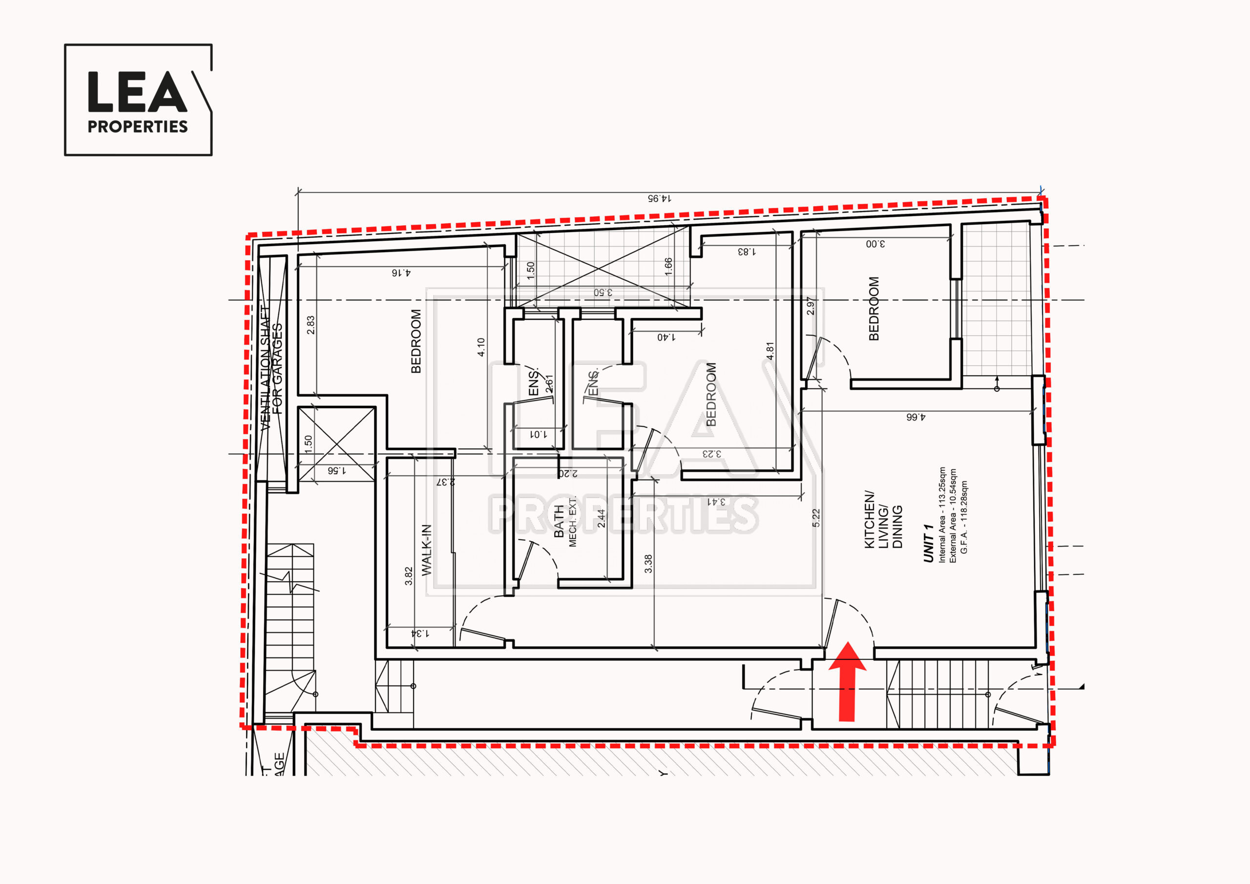
Paola – Ground Floor Maisonette

A well-designed ground floor maisonette forming part of a modern, low-density block in a quiet residential area of Paola, enjoying its own private entrance.

This spacious property offers a practical and well-planned layout spread across the entire ground floor, making it ideal for families or those seeking generous indoor and outdoor space.

The maisonette comprises a large open-plan living, kitchen, and dining area, three well-sized bedrooms, including two bedrooms with en-suite bathrooms, a main bathroom, and a box room for additional storage.

A major highlight of this home is the central internal yard, which allows excellent natural light throughout the property, creating a bright and airy living environment. The unit also enjoys a front terrace, ideal for outdoor seating or entertaining.

The maisonette is being sold finished, excluding bathrooms and internal doors.

With an internal area of approximately 113.25 sqm and an additional 10.5 sqm of outdoor space, this property offers an excellent combination of space, privacy, and modern design.

Optional garages are also available, with starting prices from €52,000.

Ideal for families, long-term living, or as a high-quality rental investment, this maisonette is a perfect choice for comfortable and practical living in a well-connected area of Paola.

Property features

Internal m2 : 113.25

3 bedrooms

3 bathrooms

Contact Agent

Maria Mallia

99101320

maria@leaproperties.com

    captcha

    Share
    PDF
    Send to a Friend
    Send to a Friend







      captcha