Finished Maisonette First floor in Fgura ref 131415

Fgura

Maisonette First floor

€ 469,000


Finished

Ref 131415

Description

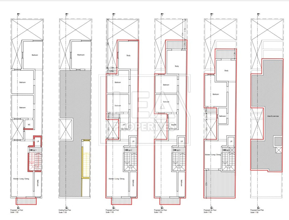
New on the market comes this first floor Maisonette with its ROOF & AIRSPACE in the central area of Fgura. This Property has the potential to be a development and be developed into 4 units. Having 3 spacious 3 bedroom apartments as well as a spacious 2 bedroom penthouse

Property features

Internal m2 : 110

3 bedrooms

2 bathrooms

Contact Agent

Lucienne Cassar

9980 5238

lucienne@leaproperties.com

    captcha

    Share
    PDF
    Send to a Friend
    Send to a Friend







      captcha